
Rural Diversification
Increasingly, our farmers and land owners are seeking ways in which to broaden the value of their rural assets. Our strength and experience over many years of practice has been in unlocking the delivery of such plans, by sensitive conversion of obsolete building stock under change of use to commercial offices, equestrian centres, holiday lets and residential developments, together with a series of new private dwellings under recent permitted development – Part Q – legislation.
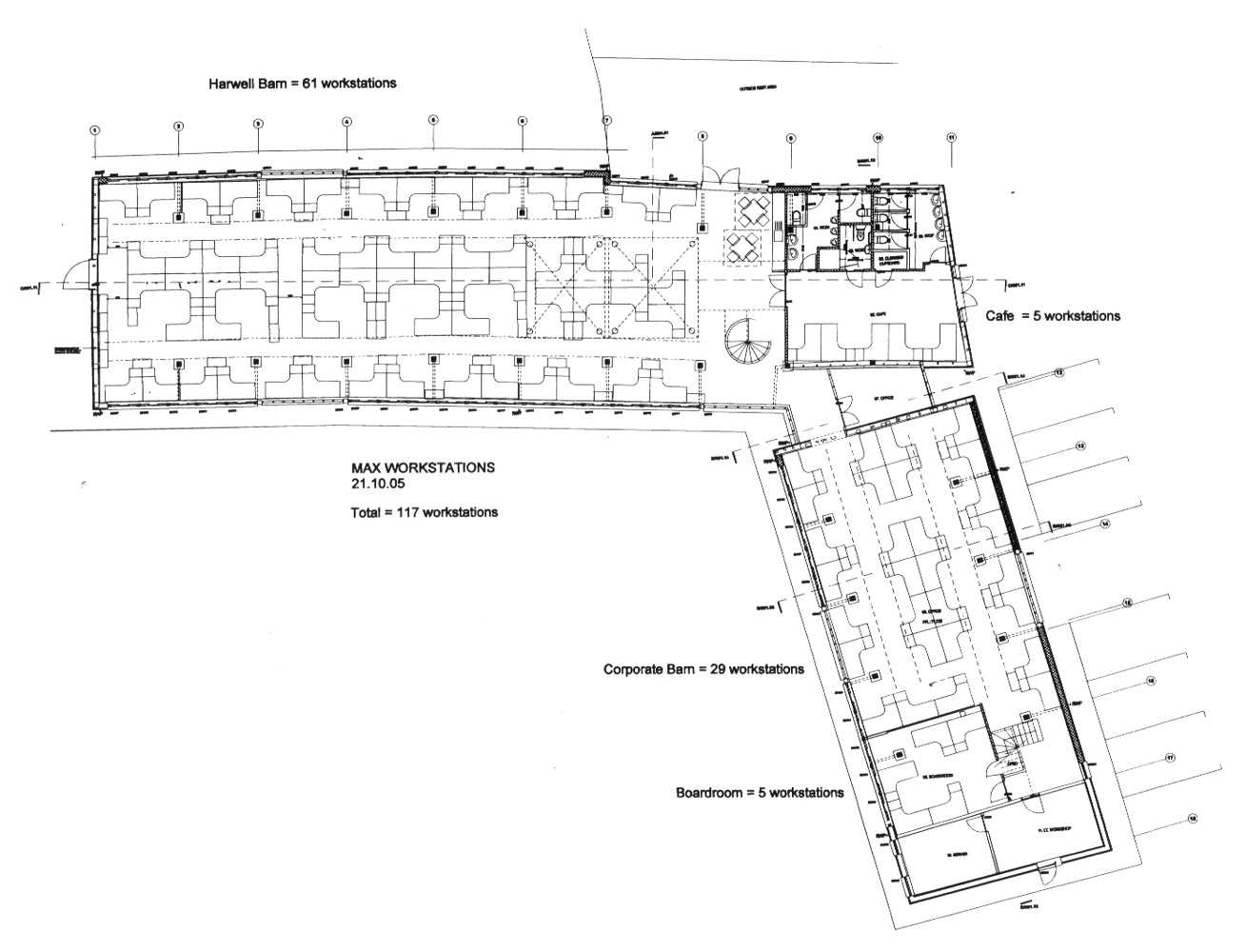
Commercial Barn Conversion,
Harwell
Repair of two listed 16th & 17th century barns and conversion to lettable offices.


Cane End Stables
Development of existing farm buildings to new stables and conversion of existing stables building to staff accommodation.



Crowmarsh Stables
Redevelopment of redundant stables block to office use and repair of existing Dovecote.

Commercial Farmyard Redevelopment,
Wheatley
Commercial redevelopment of a historic farmyard to lettable offices, comprising sensitive conversion together with sympathetic new buildings.



Barn Conversion,
South Oxfordshire
To take a dilapidated timber-framed barn and transform into a superb new home suitable for a couple with adult children/visiting families.

Dutch Barn Conversion,
Berkshire
To secure planning permission for residential conversion of a dilapidated steel hay barn on the clients’ farm.



