
Family Homes
Whether new build, conversion, extension or simply remodelling, our craft of (re)imagining a home for a particular client family is underpinned by a sensitive understanding of those individuals needs, and the special, particular characteristic of a site, building or context for the enhancement of family life together and with guests. Let us elevate the everyday routine whilst maximising the opportunities for joy in your homes!
Garden Pavilion,
Pangbourne
A stunning garden pavilion with pool and changing rooms, designed for relaxing and entertaining family events in any weather.



Holiday Cottage,
Herefordshire
A dilapidated rural cottage in Herefordshire is given a breath of new life.

New Barn,
Lower Shiplake
A substantial new replacement family home on a generous suburban plot occupied by a dilapidated bungalow.



Farmhouse Reimagined,
Pangbourne
Remodelling of a historic farmhouse, including a meticulously crafted kitchen and garden room extension, with a stunning pool suite linked by an underground stairway and games barn all set within beautifully landscaped gardens.

Family House,
Henley-on-Thames
Despite its origins as a 18th century townhouse in the heart of the town, this property was purchased as a dilapidated rambling office conversion that had suffered numerous inappropriate alterations. The brief was to convert the buildings into a cohesive family dwelling suitable for a 21st century lifestyle.



Home Remodel,
Oxfordshire
The extension, remodel and complete refurbishing of a run-down property on the outskirts of a market town.

Family House,
Berkshire
The existing dwelling, comprising main dwelling and linked cottage, was top heavy with two stories of bedrooms over a single storey of living accommodation.



Family House,
Oxfordshire
The existing dwelling is situated in a verdant Oxford neighbourhood within its Green Belt. The brief was to enlarge the existing kitchen area to provide additional dining/living accommodation in place of a former thermally inefficient garage conversion; as well as a new entrance with cloakroom.

Garden Room,
Hurley-on-Thames
To provide a Grade II listed property with a new rear hallway and a light and comfortable living space from within which to enjoy the surrounding gardens.



Listed House,
Oxfordshire
To enlarge the existing dwelling to provide a Master Suite at first-floor level with playroom and utility room below.

Gym & Annex,
West Oxford
Previously converted in 1974, the current owners wished to re-imagine how listed barns in the curtilage of their home could be used as a fully functioning annex for adult siblings and visitors, whilst providing state-of-the-art gym facilities within a redundant storage barn in the grounds of Grade II* listed dovecote and ruin.



Private Dwelling,
Kintbury
To review the potential to either extend or rebuild on the site of an existing 1980’s bungalow, to provide a generous 4 bedroom family dwelling with associated home office.

Barn Conversion,
Oxfordshire
To secure planning permission for the residential conversion of a Grade II Listed barn.



Rural Dwelling,
Vale Ridgeway
A new dwelling on the edge of the countryside adopts a rural form whilst opening up to magnificent views of the Ridgeway Path to the south.

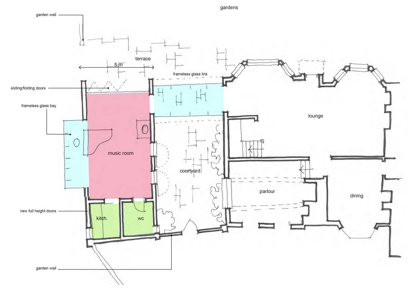
Music Room,
Rotherfield Greys
The latest addition to a 16th Century, Grade II listed Farmhouse, already extended over many years, to provide a generous space for entertaining and music recitals.



Other Family Homes
A summary of other domestic projects we have worked on, mostly alteration work that reimagines the existing layout of a property to achieve greater space with light-filled interiors that bring delight to our clients.